411 N Date Ave , Broken Arrow, OK 74012
411 N Date Ave , Broken Arrow, OK 74012
Modern Living in the Heart of the Rose District
Move in special $1750 for the first 6 months and then $2095 for the final 6 months.
Discover this stunning new construction townhome designed for style, comfort, and convenience—just steps away from the vibrant shops, dining, and entertainment of the Rose District.
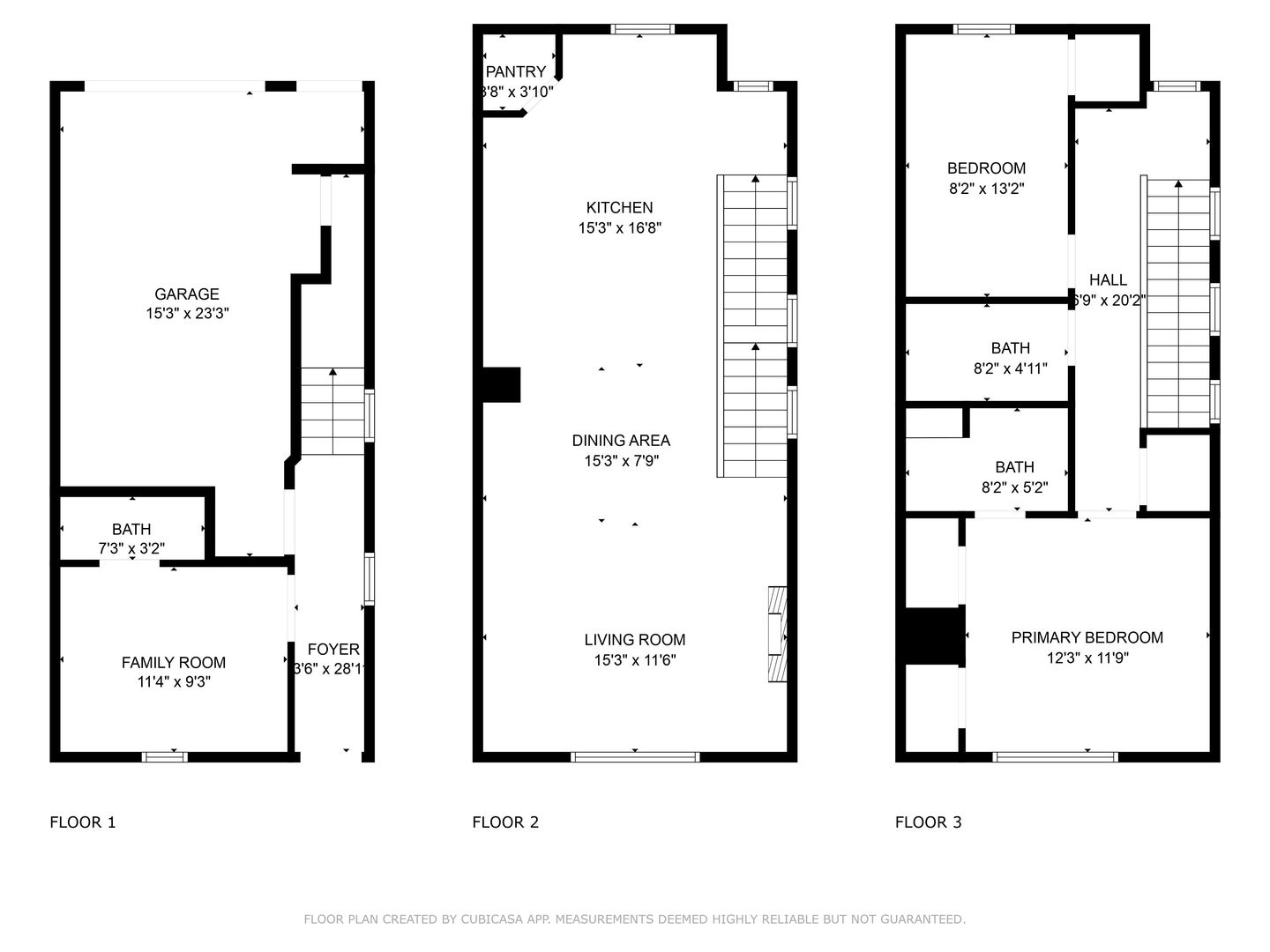
This thoughtfully designed home features a private attached single-car garage and a versatile first-floor office or bedroom with an en-suite bath, perfect for guests or a quiet workspace.
On the second floor, you’ll be welcomed by an immaculate kitchen with granite countertops, stainless steel appliances, and a built-in wine cooler—all opening into a bright, wide-open living room with oversized windows that flood the space with natural light.
The third floor offers two additional bedrooms and a full hall bathroom, along with the luxurious primary suite, where you’ll enjoy incredible views and a spa-like bathroom featuring a walk-in shower.
With its modern finishes, flexible floor plan, and unbeatable location, this townhome brings together the best of urban living and home comfort.
For more info, to schedule a showing, or to apply, visit linkedpropertygroup.com
or send us a text at 918‑626‑1602 we’d love to hear from you!
Discover this stunning new construction townhome designed for style, comfort, and convenience—just steps away from the vibrant shops, dining, and entertainment of the Rose District.
This thoughtfully designed home features a private attached single-car garage and a versatile first-floor office or bedroom with an en-suite bath, perfect for guests or a quiet workspace.
On the second floor, you’ll be welcomed by an immaculate kitchen with granite countertops, stainless steel appliances, and a built-in wine cooler—all opening into a bright, wide-open living room with oversized windows that flood the space with natural light.
The third floor offers two additional bedrooms and a full hall bathroom, along with the luxurious primary suite, where you’ll enjoy incredible views and a spa-like bathroom featuring a walk-in shower.
With its modern finishes, flexible floor plan, and unbeatable location, this townhome brings together the best of urban living and home comfort.
For more info, to schedule a showing, or to apply, visit linkedpropertygroup.com
or send us a text at 918‑626‑1602 we’d love to hear from you!
Contact us:






























